Автор Тема: Фоно корректор - замена операционника  (Прочитано 4993 раз)

0 Пользователей и 1 Гость просматривают эту тему.

kwlw

  • Сообщений: 2408
  • Тёплый, ламповый
    • Просмотр профиля
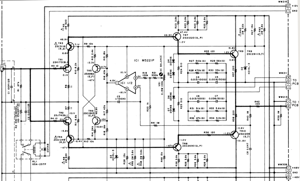
Есть в моём усилителе (AKAI AM-90 и другие модели того времени) встроенный фоно корректор. Схема:

Линк специально для Denn (и для других, которые хотят картинку по больше):


Народ меняет операционник на что-то по лучше и радуется звуку. Я бы тоже не против это сделать, но вот и так и сяк смотрю я эту схему, да не понимаю ничего в ней. Что за роль в ней исполняет операционный усилитель? Будет ли польза звуку от замены его на современный. "Замени и послушай" не катит, ибо надо пол усилителя разобрать, чтоб добраться до этой платы. Насмотрелся, как люди меняют всякие там операционники управления шкалой светодиодов и радуются "кошерному" звуку. Что-то не тянет к такой радости :).

Sau
У меня - свой путь.

Bpjkznjh

  • Гость
Re: Фоно корректор - замена операционника
« Ответ #1 : Июня 29, 2015, 04:55:48 pm »
Вроде же написано - DC balance. :)
В звуке не участвует.

kwlw

  • Сообщений: 2408
  • Тёплый, ламповый
    • Просмотр профиля
Re: Фоно корректор - замена операционника
« Ответ #2 : Июня 29, 2015, 05:00:47 pm »
Цитировать
Вроде же написано - DC balance. :)

Ну там крутилка, которой ставится баланс постоянки на выходе (нужно поставить 1мВ, чтоб всё было по науке).

Цитировать
В звуке не участвует.

У меня тоже такие подозрения возникли. Но надо как то до конца удостоверится, что шумы от этого операционника (20+ лет ему как ни как) во звук не будут красться?

Sau
« Последнее редактирование: Июня 29, 2015, 05:01:13 pm от kwlw »
У меня - свой путь.

KSG

  • Сообщений: 5766
  • GtLab.Net forever!
    • Просмотр профиля
    • E-mail
Re: Фоно корректор - замена операционника
« Ответ #3 : Июня 29, 2015, 05:19:55 pm »
Судя по номиналу С3, там действительно звуку хода нет...
Практика - критерий истины

OlegFX

  • Сообщений: 5097
    • Просмотр профиля
Re: Фоно корректор - замена операционника
« Ответ #4 : Июня 29, 2015, 06:01:13 pm »
По новым воззрениям тип ОУ в интеграторе (так эта хрень называется) очень даже заметно влияет на звук.

Bpjkznjh

  • Гость
Re: Фоно корректор - замена операционника
« Ответ #5 : Июня 29, 2015, 06:01:52 pm »
Цитировать
По новым воззрениям тип ОУ в интеграторе (так эта хрень называется) очень даже заметно влияет на звук. 

Каким образом?

OlegFX

  • Сообщений: 5097
    • Просмотр профиля
Re: Фоно корректор - замена операционника
« Ответ #6 : Июня 29, 2015, 06:22:44 pm »
А фиг его знает, товарищ майор! Я особо не вникал в эту тему. Что-то там с продуктами нелинейностей, которые пролазят в сигнальный тракт. Это многократно обсуждали на Веге, включая рекомендации по выбору ОУ.

Bpjkznjh

  • Гость
Re: Фоно корректор - замена операционника
« Ответ #7 : Июня 29, 2015, 06:53:38 pm »
Цитировать
А фиг его знает, товарищ майор! Я особо не вникал в эту тему. Что-то там с продуктами нелинейностей, которые пролазят в сигнальный тракт. Это многократно обсуждали на Веге, включая рекомендации по выбору ОУ. 

Ну не знаю, если основной сигнал интегратором сильно давится, то продукты нелинейностей - ещё больше. Как они там пролезают? Конечно абсолюта нет, вопрос в уровне "пролезания".

KSG

  • Сообщений: 5766
  • GtLab.Net forever!
    • Просмотр профиля
    • E-mail
Re: Фоно корректор - замена операционника
« Ответ #8 : Июня 29, 2015, 07:20:54 pm »
С такой огромной ёмкостью он должен обладать ощутимой инерцией и неизбежно "хлюпать" и "заикаться" при динамических процессах.
Интересные вещи иногда вылазят в схемах, если подать на них прямоугольную пачку синуса...
Практика - критерий истины

Bpjkznjh

  • Гость
Re: Фоно корректор - замена операционника
« Ответ #9 : Июня 29, 2015, 07:38:57 pm »
Цитировать
С такой огромной ёмкостью он должен обладать ощутимой инерцией и неизбежно "хлюпать" и "заикаться" при динамических процессах.
Интегратор - он по определению инерционен, но насчёт хлюпать, заикаться...

Цитировать
Интересные вещи иногда вылазят в схемах, если подать на них прямоугольную пачку синуса...
Вопрос в  подаваемом сигнале - если схема не УПТ, то и сигнал д.б. симметричным.

KSG

  • Сообщений: 5766
  • GtLab.Net forever!
    • Просмотр профиля
    • E-mail
Re: Фоно корректор - замена операционника
« Ответ #10 : Июня 29, 2015, 07:53:22 pm »
Я в своё время практиковал такой метод в магнитофонах и сделал для себя неутешительные выводы...
Практика - критерий истины

Bpjkznjh

  • Гость
Re: Фоно корректор - замена операционника
« Ответ #11 : Июня 29, 2015, 08:11:58 pm »
Цитировать
Я в своё время практиковал такой метод в магнитофонах и сделал для себя неутешительные выводы...

Это же не значит, что везде и всегда так.

Denn

  • Global Moderator
  • *****
  • Сообщений: 14277
  • είμαι ο μουσικός και ο ραδιομηχανίκός
    • ICQ клиент - 322153053
    • Просмотр профиля
    • E-mail
Re: Фоно корректор - замена операционника
« Ответ #12 : Июня 29, 2015, 08:19:23 pm »
Я бы заменил всю эту "красоту" на лаконичную схемку RIAA-корректора на одном хорошем ОУ. Если проигрыватель стереофонический, то используем сдвоенный ОУ.

Если применить SMD, то платка получится размером меньше спичечного коробка.
Я себе делал на трушно-больших детальках, но сама схема корректора в коробок тоже влезет:



Поскольку винил-корректор критичен к перегрузкам, то советую использовать большое напряжение питания и соответствующие ОУ. В своём я использовал ОУ OPA2604 с питанием +/-22 Вольта.

П.С. схемотехника гуглится по названию "семь сорок" :)
« Последнее редактирование: Июня 29, 2015, 08:24:39 pm от Denn »
Не говорите что мне делать, и я не скажу куда Вам идти.

Лучшее решение из возможных - самое простое. И наоборот.

Прежде чем судить

Jimmy_Page

  • Гость
Re: Фоно корректор - замена операционника
« Ответ #13 : Июня 29, 2015, 09:49:50 pm »
Раз уж пошла такая пьянка...я тут недавно наткнулся на очень интересную RL разработку (с симуляциями и измерениями).

Может кому то будет интересно: http://www.pmillett.com/file_downloads/LR%20Phono%20Preamps.pdf
« Последнее редактирование: Июня 29, 2015, 09:50:32 pm от Jimmy_Page »

KSG

  • Сообщений: 5766
  • GtLab.Net forever!
    • Просмотр профиля
    • E-mail
Re: Фоно корректор - замена операционника
« Ответ #14 : Июня 29, 2015, 09:58:03 pm »
Цитировать
Это же не значит, что везде и всегда так.
- да, не значит. Но проверить на вшивость не помешает.
Практика - критерий истины